Since 1982

Palazzo Giustiniani 14

Stylish Historic palazzo in a village : Salento, Puglia

Perfect for

  • It is possible to request additional services, such as a "housekeeper" who provides breakfast, a local guide, private yoga instructor, own chef, etc.
  • Everything is within walking distance: supermarket, good café, restaurant and fishmonger in the small town of Sogliano Cavour, where the property is centrally located overlooking the local piazza and church

Good to know

  • An Italian village is alive with children playing, people talking in the street and other noises of life - you will hear other people around in this house.
  • This is a historic building so be aware there are steep stairs and uneven surfaces.

Palazzo Giustiniani is a stylish and elegant seventeenth century Palazzo set in the heart of a small town in the Salento region of Puglia

This important historical property has been restored with a light touch, the decor left deliberately minimalist and "unpolished", to reveal the elegance of the architecture. The house sleeps 10, with 5 large bedrooms, six bathrooms and an outdoor shower, patio, a wonderful swimming pool and a roof terraces, giving plenty of space for either a whole multi-generational family or 2-3 couples who want to holiday together and explore the many hidden gems of Southern Italy.

Palazzo Giustiniani is set in the small town of Sogliano Cavour, approximately 20 kilometers south of Lecce - a little piece of paradise, within easy reach of the most famous beaches and art towns in Salento, Puglia. There are restaurants and shops within easy walking distance. The pleasant, southern Italian climate makes Puglia a perfect holiday destination in all seasons.

Accommodation

This beautiful Palazzo is in the centre of the small historic town of Sogliano Cavour in the Salento region, and faces the village church in the main square.

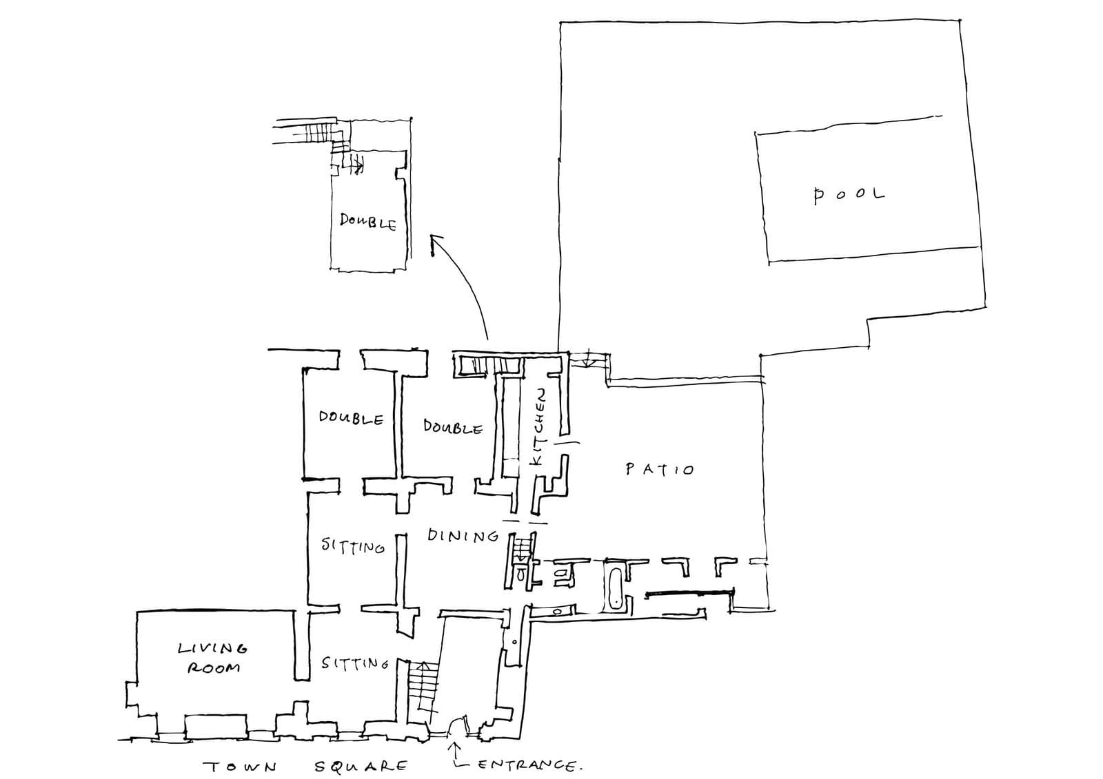
The entrance is from the main square, through a large doorway surrounded by intricate baroque carvings, reminiscent of Andalusia. Unusually, the 'piano nobile' is only raised by a half-floor from the ground level; the lower part of the building is a sunken cellar that provides a source of cool air to flow through the house, providing natural air-conditioning.

The entrance is into a wide hallway, from here half a flight of stairs takes you into the first lounge, a vaulted room with a tall window onto the square. Ahead from this room you'll find an enormous living room with an even taller vaulted ceiling, four large sofas and a drinks cabinet. This is where most people congregate if not outside in the courtyard - it's always cool, has two windows onto the square and is made for chatting and relaxing.

Turning left from the main entrance will take you into a vaulted room that can be used as a bedroom if need be, but is a through room. Beyond that there is a double bedroom, while the dining room is on the right, with a large round table in the centre. French doors open out onto one of the internal courts, an ideal space for al-fresco meals.

There is a further bedroom off the dining room and at the back of this bedroom a secret stairway takes you to a bedroom under the ceiling vault.

Back in the dining room, turning left you'll find a well-equipped kitchen, with dishwasher, induction hob, oven and large fridge freezer, perfect for trying your hand at Italian cooking - or you can ask the Palazzo's excellent cook to cook for you. Turning right takes you into one of the many intricacies of this house, a narrow worn staircase carved out of the thickness of the wall. This leads up to a bathroom, a vaulted bedroom on the right and, on the left, to a large double with ensuite bathroom.

Beyond it there is a room and french doors onto a large roof Terrace. A further flight of stairs will take you out onto even more roof terraces, showing the humps from the vaults below.

Back in the dining room another door (this old palace is labyrinthine!) opens into a corridor/bathroom. On the right there is a shower with a beautiful carved stone window. To the left, under the stairs, a wc, and at the end of the corridor, a magnificent room with a giant stone bath.

The main courtyard is an intimate and lovely place where you can listen to music and enjoy a refreshing cocktail while in the company of friends and family, relaxing on the outdoor sofas. The pool is in yet a further part of the internal courtyard, partially shaded by a large old tree. There is also a small loggia equipped with a shower area and a bathroom,

Features

Villa Details

  • Air Conditioning
  • Swimming Pool
  • Wifi
  • Private Pool

Bedrooms and Bathrooms

  • 3 Ensuite Double Bedrooms
  • 4 Further Double Bedrooms
  • 3 Bathrooms
  • Outdoor Bathroom And Two Outdoor Showers

Kitchen equipment

  • Kettle
  • Italian Coffee Maker (Moka)
  • Oven
  • Dishwasher
  • Induction Hob
  • Coffee Machine

Amenities

  • Air Conditioning
  • Cot And High Chair
  • Iron & Ironing Board
  • Washing Machine
  • Tumble Dryer
  • Safe
  • Pet Friendly
  • Fireplace
  • Hair Dryer

What's included

  • Final Cleaning Is Included
  • Linens And Towels
  • Mid Week Linen And Towels Change
  • Pool Towels

Extras

  • Housekeeper Available
  • Private Chef On Request
  • Cookery Courses On Request
  • Private Driver On Request
  • Local Guide On Request
  • Private Yoga Instructor On Request For Week Long Courses

Outdoors

  • Swimming Pool 7X3 Metres
  • Roof Terraces
  • Furnished Outdoor Courtyard

Nearby Activities

Photos

Click on any photo to enter gallery

Reviews

“ A wonderful visit ”

It was a wonderful visit with everything you could want. We were very well looked after by our host Barbara and nothing was too much trouble.

The palazzo was well designed and furnished to a high standard. The rooms were comfortable and the outside space was amazing. I really liked the way modern convenience mixed with the old to provide a restful,relaxing holiday experience unlike any other I have previously known.

Lynne from UK staying in Palazzo Giustiniani . Aug 2024

“ A magical place full of history ”

Palazzo Giustiniani is one of the most magical places I have ever encountered! The place is just heavenly. From the historical grounds to the tasteful refurbishment by the owners, everything speaks of quality and attention to detail. Barbara has gone out of her way to look after us and she's been one of the best hosts ever. The breakfast on offer is top notch. The pool and gardens are super peaceful and airy. The location is right next to everything you might need. A one of a kind experience that will stay with you forever, don't miss on this one

Afroditi from UK staying in Palazzo Giustiniani . Jul 2024

“ An elegant and intimate experience at the same time ”

I spent some dream days with some friends in the beautiful Giustiniani palace.
Barbara is an extremely helpful and convivial woman, and together with the engineer Giustiniani welcomed us giving us some historical goodies on the building.

The beauty of the Apulian resorts has enriched a unique intimacy that Sogliano Cavour and the building have managed to give us.

The location is extremely well-kept with objects of elegant and contemporary design that come into contact with typical elements of the local architecture, such as star vaults and Lecce stone.

Very clean, king size beds made it even more comfortable.

I can't help but mention the outdoor patio, where I shared with my friends chatting and laughing, it gave us an elegant yet homely atmosphere.

A magical place, perfect for families, friends, but also couples and real connoisseurs.

Gabriele from Italy staying in Palazzo Giustiniani . Apr 2024

“ I loved the authenticity ”

I loved the authenticity of Palazzo Giustiniani and the atmosphere that can be felt there, the large internal and external spaces and the style, refinement and refinement of the furnishings. All studied down to the smallest detail, respecting the history of the building and the Salento architecture.

Large bedrooms with very comfortable beds. Beautiful bathrooms. The large and well-equipped kitchen. The courtyard, the swimming pool area and the various terraces offer different outdoor areas on multiple levels, where you can choose to stay in complete tranquility and shielded from the rest of the world, or with views over the main street of the town and the beautiful church in front of the Palace.

At Palazzo Giustiniani you can really breathe a special atmosphere in all its rooms. Exquisite and professional welcome. Impeccable cleanliness. In addition to the beauty of the structure and the guarantee of excellent service, also the very central position in the main square of Sogliano Cavour, with all commercial services within walking distance, and the most beautiful beaches of Salento 20 minutes by car, make Palazzo Giustiniani a real pearl for unforgettable holidays with family or a group of friends.

Manuela from Denmark staying in Palazzo Giustiniani . Mar 2023

“ Magical Historical Palazzo ”

I'm Dan, the owner of Invitation to Tuscany. In April 2023, I had the pleasure of visiting the Palazzo. This historical treasure has been beautifully restored with a delicate touch and impeccable taste. Located in the heart of the town, it feels like a genuine part of the community, offering a rich experience of Italian culture.

During my visit, I spent much of my time exploring the surrounding area. The Palazzo is ideally situated for trips to the beaches of Salento. I tested this by driving east to Otranto, then following the coast down to Santa Maria Leuca (Finibus Terrae), and up the western coast to Gallipoli. Each town and beach on this route is worth a full day's exploration, making for a fantastic day trip.

As a former architect, I found the building particularly fascinating. It features a series of underground rooms (not accessible to visitors) that naturally circulate cool air into the rooms above during the hotter months. While Barbara and Filippo have installed modern air conditioning, this centuries-old system helps keep the massive stone structure cool through natural ventilation.

I'm thrilled to include this remarkable building in our portfolio.

Dan from Invitation to Tuscany staying in Palazzo Giustiniani . Apr 2023

Where is Palazzo Giustiniani ?

Getting here

  • Closest Train Station Galatina, 10 mins
  • Salento Airport 1 hour
  • Bari Airport 2 hours

Around Palazzo Giustiniani

Palazzo Giustiniani is in the heart of Salento, with a wide selection of historic cities and village to visit as well as some of the most beautiful beaches of Southern Italy.

The fabulously extravagant baroque city of Lecce is a mere 20 minutes drive away, as are Otranto and Gallipoli. A little further away, at 45 minutes drive, is the well-known Santa Maria di Leuca, a town sitting on the southern-most tip of the peninsula, just where the Ionian sea meets the Mediterranean. Well worth a visit, it has some beautiful Art Nouveau homes on the seafront, and the beautifully named "Basilica De Finibus Terrae" sanctuary.

A selection of our favourite local beaches would be: Santa Maria al Bagno - just 20 minutes from the Palazzo, Baia di Porto Selvaggio, a wild promontory overlooking a small cove and just 25 minutes away. Or Lido Marini in Ugento, 35 minutes away, Cocoloco in Ugento, an elegant resort 40 minutes drive away. Or read about the best beaches in the Salento here.

Nearby Activities

  • Restaurants, grocery stores and bar/cafes within walking distance
  • Gallipoli with beaches and a castle, 40 mins
  • Many beautiful beaches of the Adriatic and of the Mediterranean can be reached in around 30 minutes
  • Cave formations Zinzulusa 40 mins
  • Fabulous baroque city of Lecce 30 mins

Local Towns and Places to Visit

Click on any photo to enter gallery

Palazzo Giustiniani: Sleeps 14
€ 7056 to 11466 per week

Share:

Calendar for Palazzo Giustiniani

The Calendar is loading.

How to book

Is Palazzo Giustiniani perfect for you?

For over 40 years, Invitation to Tuscany has personally selected and visited every villa we represent. Our team knows each property and its surroundings intimately - allowing us to help you choose the perfect home for your family or group, and to make your stay as memorable as the place itself.

How to Book

Check availability: View pricing and availability in the calendar above. To book online, click your desired arrival date, then your departure date. The calendar will grey out dates for stay lengths that aren't accepted—most villas book Saturday to Saturday, but many also allow shorter stays or flexible dates.

Need help choosing?

We visit our properties regularly and can provide firsthand advice based on your wishlist. Contact us and we'll help you select the best villa for your holiday. Secure your dates: We can hold your preferred dates for 48 hours while you confirm flights and coordinate with your group. To confirm, simply pay the 30% deposit. Your balance will be due 10 weeks before arrival.

Complimentary Concierge Service

Every booking includes our free concierge service to help make your stay special:

  • Up to 3 activity or restaurant bookings per stay
  • Local recommendations and insider knowledge
  • Standard check-in coordination
  • General travel assistance

Need more support? Our Concierge Plus (€300) provides dedicated planning support for guests requiring more activity bookings, larger group logistics, or special occasions. Please note that weddings and event planning do not fall under this. Request this when booking or as early as possible.

Flexible Booking Options

Easy cancellation: Add XCover to your booking for a full refund if you can't travel. You can add XCover anytime before paying your balance - just ask your agent. See our Booking Conditions and XCover for more information. Need to change dates? Let us know - we can often modify your booking rather than cancelling outright.

Worth Knowing

Tourist Tax: Many local administrations charge a tourist tax for rental accommodation, which varies by town. Charges typically range from €0.50 to €5 per person per night, with a maximum of 5-7 nights. Children are sometimes exempt. These charges are collected by property owners and paid directly to them.

Still Have Questions?

Call us for quick answers - we're here to help. You'll also find lots of useful information in our FAQ page . Haven't found the perfect villa yet? Browse our suggestions below!

CIN: IT075075B400078304