Since 1982

Fienile 10

Elegant Siena Villa for 10 with Pool and Spa : Siena

Nice little touches

  • This spacious elegant house is remarkably close to Siena yet still immersed in countryside.
  • Having your own spa and steam room makes it extra special - massages can be arranged too.

Good to know

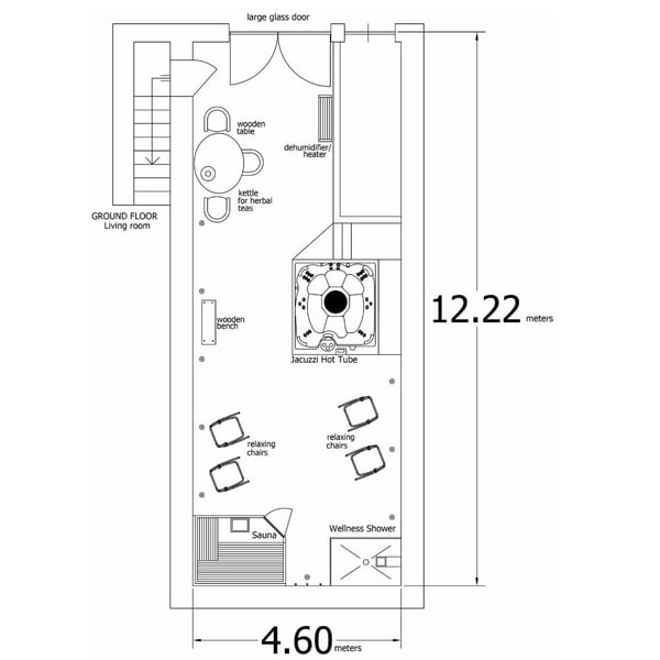
  • The Spa and Sauna are charged by metered energy consumption
  • Though not EU norm, a path from the lower parking area connects to upper accommodation level on which there are bedrooms and bathroom, with ramps installed as necessary. So this is a good house for those with mobility problems.

Fienile is the perfect villa for a relaxing and luxurious Tuscan holiday - and was recently listed in the Sunday Times - 30 best villas for summer. Set in the green hills of Chianti and within easy distance from Siena, Il Fienile has all the ingredients of classic Tuscan villas plus some luxury extras like the sauna and Jacuzzi.

The furnished poolside terrace stretches the width of the house, with extensive views on all sides. Il Fienile is the perfect house for family reunions, equipped with all the elements that ensure a relaxed comfortable holiday with space enough for everyone. The pool is fenced making sure everybody can relax while the children run around and enjoy themselves.

We have been letting Fienile for a long time and the owner has been constantly renewing and improving the house and the services, it gets better every year!

Accommodation

The main doors from the furnished terrace and pool area lead into a large living area with comfortable furnishings and a dining table for 10. A bright kitchen flanks the living area and also opens out towards the sun terrace and pool area. There are 3 ensuite double bedrooms on this ground floor. A staircase off the front hall leads up to two more ensuite double bedrooms. All the bedrooms have good quality bedlinen and elegant furnishings.

When you step out to enjoy the Tuscan sun you will find ample space for activity or relaxation. In the well-tended grounds, there is a terracotta solarium with views of the Chianti countryside and the spacious terrace with sun-beds and a furnished gazebo that overlooks the pool. Outdoor lighting around the property and in the pool mean you can linger over al fresco dinners and continue to splash until you tire; the pool is safely fenced but, should you prefer, the fence can be removed to give more space around the pool. Just below the house is a home spa, with jacuzzi, sauna and cascading shower that all guarantee you arrive at the end of the day relaxed. And just to make sure, on request, the owner can organize a professional massage on-site.

Features

Villa Details

  • Air Conditioning
  • All ensuite
  • Wifi
  • Free Parking
  • Private Pool
  • Jacuzzi
  • Fenced Pool

Bedrooms and Bathrooms

  • 5 Double Bedrooms All En-Suite (Double Beds Are 160X190Cm, Single Beds Are 85X190Cm), Two Can Be Made Into Twins On Request.
  • Hair Dryers In Each Bathroom
  • Mosquito Screens In Every Room

Kitchen equipment

  • Coffee Maker (Italian And American Style)
  • Kettle
  • Microwave
  • Oven
  • Toaster
  • Dishwasher

Amenities

  • Barbecue
  • Dvd Player
  • Air Conditioning (Extra)
  • Baby Bed And High Chair
  • Hair Dryer
  • Iron And Ironing Board
  • Jacuzzi And Steam Room
  • Cd Player And Radio
  • Safe Deposit Box
  • Television With Some English Language News Channels
  • Washing Machine
  • Telephone
  • Fireplace
  • Pets Allowed

What's included

  • Final Cleaning
  • Pool Towels Provided
  • Heating And Ac Included
  • Jacuzzi And Steam Room Included
  • Tourist Tax Included

Extras

  • Extra Linen On Request (Extra)
  • Arrival Groceries, On Request
  • Extra Cleaning
  • Catering
  • Cooking Classes
  • Babysitting

Outdoors

  • Swimming Pool 12 X 6 Metres. Depth From 1 To 2.4 Metres. Corner Steps Into Pool. Open From Early April To 15 November (Weather Permitting)

Nearby Activities

Photos

Click on any photo to enter gallery

Reviews

“ Excellent Villa ”

Stayed in the villa for a week with our family of 10. For starters, Laura with Invitation for Tuscany was extraordinary helpful responding to numerous questions before and after booking the villa. Marco, the owner, is very accommodating and has done a very tasteful job of converting what was once a barn into a lovely villa. Some of the bedrooms convert to single beds which made the grandkids very happy that they did not have to share. The location is wonderful, being just outside the suburbs of Siena, close to a small town with a grocery store, but isolated enough with great views of the countryside. While always skeptical at the pictures I see on the website, rest assured it is a very good representation of reality. I would stay here again in a heartbeat.

Joe from the USA staying in Fienile . Apr 2025

“ Great Stay ”

Wonderful location and beautiful Villa. 5 couples stayed comfortably with plenty of space. Place was very clean, updated, and well maintained. Very private. Communication with Marco and invitation to Tuscany was excellent. Would highly recommend!

Mr M.C, USA staying in Fienile . Sep 2024

“ A Wonderful Property ”

We stayed in this home for 3 weeks and enjoyed every minute. Marco, the owner, met us the first day and provided an incredible briefing, along with detailed written information about the house and the local area (his restaurant recommendations are great). The home was clean and neat, and everything in the home worked and made the stay comfortable. Marco kept in contact to ensure there was nothing we needed or lacking in the home.

Marta, the owner of Marta's Cooking Classes, came to the home twice and prepared spectacular meals that were better than any we enjoyed in the many restaurants we visited. We have been to the Siena area three times before, but this property, and Marco and Marta, permitted us to have a completely different experience. For instance, we walked to San Miniato each morning and enjoyed cappuccinos and pastries in the local coffee cafe, which permitted us to meet the local baristas (an experience we also highly recommend).

We cannot recommend Fienile enough.

Mary & Friends staying in Fienile . Jun 2023

“ Beautiful villa in gorgeous surroundings ”

Beautiful villa in gorgeous surroundings. Happy place. Lovely pool, al fresco eating, comfortable beds. Lovely decor, spotlessly clean. Marco, the owner, stopped by a couple of times to say hi. I'd highly recommend. Very close to Siena too. Take a cab, not worth the hassle of finding a parking place.

Sandra Thompson staying in Fienile . Jul 2015

“ A very enjoyable two week stay ”

Great location - 20 mins from easy to access car park in Siena (Il Campo). Supermarket on road by from Siena to villa. Villa - Very clean, great use of space, comfortable furniture inside and out. Pool very clean and large. Lots of places to sit. Shade from the Sun if required at all times of the day. Wifi worked well. Villa well equipped. Air conditioning very cheap (25 Euros for two weeks, used every night). Owner was helpful and responsive. We had a very enjoyable two week stay.

Mr. S.J. and family, from the UK staying in Fienile . Sep 2014

“ The villa is absolutely georgeous ”

This villa is absolutely gorgeous. Ten of us stayed there, ranging in age from 13 years to 59. Plenty of room for all. We didn't spend much time inside because the garden, patio and pool were so beautiful. We ate Italian family style dinners outside in the evening. Adults and kids alike hung out in the pool in until well after dark. The views from this villa are to die for, and the sunsets. We met Marco, the owner a couple of times. He was charming and extremely helpful. Wish I'd booked two weeks instead of one. You can get a taxi into Siena for ten euro, which is better than trying to park there. Can't say enough good things about this comfortable superb property. Loved it!

Mrs. S.T. and family from the USA staying in Fienile . Nov 2015

“ Definitely recommend Fienile to family and friends ”

Fienile had wonderful indoor and outdoor space and was very comfortable for our group of 8. We loved dining outside at night under the canopy next to the pool while sharing our experiences and tasting our newly found Tuscany regional wines. Also, the terrace and garden views were so beautiful and relaxing...we often enjoyed our morning coffee there. The villa kitchen is very well equipped with plenty of glasses, dishes, pots and pans. We enjoy cooking, so we prepared several meals in the kitchen there. Two nights we arranged to have dinner catered...one was a drop-off and the other was an in-house cooking class. We enjoyed a full day private wine tour to Montalcino and another day trip to Antinori Winery. We also spent a few relaxing hours one day at the thermal springs (not sure of name). Of course, Siena itself had so much to offer in the way of shops, restaurants, and beautiful churches and museums. Our favorite restaurant in Siena was Trattoria Papei. On other days, we just drove and discovered small villages with very quaint restaurants for lunch and just enjoyed sitting and "soaking in" the atmosphere. We would definitely recommend Fienile to family and friends and would love to return with our family in a few years. Thanks for your help and information to make this a beautiful and memorable trip.

Mrs D.K. and family, USA staying in Fienile . Feb 2015

“ Excellent base to explore this part of Italy ”

The property was delightful, beautifully situated in the peaceful hills with amazing views, yet only a very short drive (10 minutes) to Siena. The property was spacious and very well equipped. Wonderful gardens with terraces, a pool and fabulous views of the surrounding Tuscan countryside. The owner, Marco was most welcoming on arrival, showing us all round the property and ensuring us of his assistance should there have been anything we needed while staying. We enjoyed a brilliant evening when a local family came and cooked an amazing Italian feast for us - absolutely delicious! Plenty of beautiful places within easy striking distance. We would certainly recommend the villa as an excellent base to explore this part of Italy.

Mrs. C.A. and family, from the UK staying in Fienile . Feb 2014

“ Very relaxed environment, well appointed spacious villa ”

We stayed at Fienile for a week with extended family (including 3 children between 1-3). Very relaxing environment, well appointed, spacious villa with good facilities (internet (which did drop out a bit)) and decent sized bedrooms and bathrooms. The outdoor area was well used and the pools proximity to the house was important to us with little children running around, the pool isn't fenced and we bough a water alarm for our 17 month old daughter in case she fell in. There is a lovely area for eating meals in-between the pool and the house. The location of the villa is excellent with a supermarket (Co-op) about 1.5 kms away and Siena a 15 minute drive. It is also conveniently located for day trips to other places in Tuscany (San Gimignano, Montepulciano, etc). Marco, the owner was very helpful and responsive to any issues or questions we had.

Mrs. C.C. and family, from the UK staying in Fienile . Aug 2012

“ Lovely, very comfortable, clean and well-appointed ”

The house is lovely, very comfortable, clean and well-appointed. The pool is clean, close to the house and a good size for proper swimming as well as playing, though would not be suitable for very small children. The whole outdoor area, seating, dining etc is very well arranged. The owner was extremely helpful, and responded quickly when we had a couple of small issues or queries. The age range of the party was from 7 to 74 and all of us loved it.

Mrs. D.W. and family, from the UK staying in Fienile . Feb 2011

“ A wonderful home during our two week stay ”

Il Fienile is a wonderful villa! There are six bedrooms (four double and two single) which were clean and comfortable with lots of wardrobe space, extra pillows, blankets and available plug-ins. There are four bathrooms with showers, 2 also have bidets. Hairdryers are provided as well. The kitchen is spacious with a large refrigerator and five burner gas stove with an electric oven. The kitchen is well-stocked with the cookware necessary to create your own gourmet meals. A stained glass window makes the atmosphere even more special. Three complete sets of china and a wide assortment of stemware are available for dining in the dining room or outside under the covered terrace beside the pool. The gardens are splendid and the pool, complete with a diving rock, is clean. There are lots of lights which allow the deck and gardens to be used after sunset. Access to the gardens is easy from one of two garden doors equipped with screens and shutters. The property, although not far from Siena and other villas, is secluded on a hillside from which the views are fabulous. The overall ambience of this stone house furnished with antiques and semi-precious art work is luxurious. The owner lives near by and is available to answer questions and deal expeditiously with any concerns. The available WiFi worked well but downloading was sometimes slow in the evening. Il Fienile was a wonderful home during our two week stay. It is centrally located for easy access to many Tuscan must-see places like Siena, Montepulcino, Castello di Verrazzano, Lucca and San Gimignano. For an extra special treat, contact Emily at a Tuscan Table (www.atuscantable.com). She can prepare a scrumptious meal for you at the villa.

Mrs. L.L. and family, from the USA staying in Fienile . Dec 2010

Where is Fienile ?

Getting here

  • Florence Airport 1hr
  • Pisa Airport 1hr 30 mins
  • Nearest Train Station Siena - 10 minutes drive
  • Closest Bus stop 4 mins drive, or 20 minutes walk

Around Fienile

For all of its country feel Il Fienile is less than five minutes from the nearest coffee bar and market and about ten minutes from the heart of the city.

Known in present times for its Palio horse race and its wonderful shell-shaped piazza Il Campo, Siena was once a strong rival to Florence and a stopover must on the Via Francigena trail for pilgrims heading to Rome. That it fell to its adversary and lived in obscurity for centuries is now only a benefit, for its winding streets and striking architecture have survived the ages to delight the modern traveller.

Whether you spend hours exploring the city centre, follow the Chiantigiana out to the wine hills, or simply linger by the pool, this corner of Tuscany is guaranteed to please.

Nearby Activities

  • Bar and shopping in San Miniato, 5 minutes drive
  • Historic centre of Siena 10 minutes drive
  • Castellina in Chianti 30 minutes
  • San Gimignano 40 minutes

Local Towns and Places to Visit

Click on any photo to enter gallery

Fienile: Sleeps 10
€ 5435 to 9922 per week

Share:

Calendar for Fienile

The Calendar is loading.

How to book

Is Fienile perfect for you?

For over 40 years, Invitation to Tuscany has personally selected and visited every villa we represent. Our team knows each property and its surroundings intimately - allowing us to help you choose the perfect home for your family or group, and to make your stay as memorable as the place itself.

How to Book

Check availability: View pricing and availability in the calendar above. To book online, click your desired arrival date, then your departure date. The calendar will grey out dates for stay lengths that aren't accepted—most villas book Saturday to Saturday, but many also allow shorter stays or flexible dates.

Need help choosing?

We visit our properties regularly and can provide firsthand advice based on your wishlist. Contact us and we'll help you select the best villa for your holiday. Secure your dates: We can hold your preferred dates for 48 hours while you confirm flights and coordinate with your group. To confirm, simply pay the 30% deposit. Your balance will be due 10 weeks before arrival.

Complimentary Concierge Service

Every booking includes our free concierge service to help make your stay special:

  • Up to 3 activity or restaurant bookings per stay
  • Local recommendations and insider knowledge
  • Standard check-in coordination
  • General travel assistance

Need more support? Our Concierge Plus (€300) provides dedicated planning support for guests requiring more activity bookings, larger group logistics, or special occasions. Please note that weddings and event planning do not fall under this. Request this when booking or as early as possible.

Flexible Booking Options

Easy cancellation: Add XCover to your booking for a full refund if you can't travel. You can add XCover anytime before paying your balance - just ask your agent. See our Booking Conditions and XCover for more information. Need to change dates? Let us know - we can often modify your booking rather than cancelling outright.

Worth Knowing

Tourist Tax: Many local administrations charge a tourist tax for rental accommodation, which varies by town. Charges typically range from €0.50 to €5 per person per night, with a maximum of 5-7 nights. Children are sometimes exempt. These charges are collected by property owners and paid directly to them.

Still Have Questions?

Call us for quick answers - we're here to help. You'll also find lots of useful information in our FAQ page . Haven't found the perfect villa yet? Browse our suggestions below!

CIN: IT052032C2RJTEGR6M